Видео
отзывы
Кредит, ипотека Подбор зем. участка Обмен на квартиру Экскурсия на объект
8(843) 225-88-22
+7 927 248 80 60
Оставить заявку
г. Казань
ул. Журналистов, д. 2, офис 4
Строим Ваши Мечты
Экологически чистые дома
для самого ценного времени

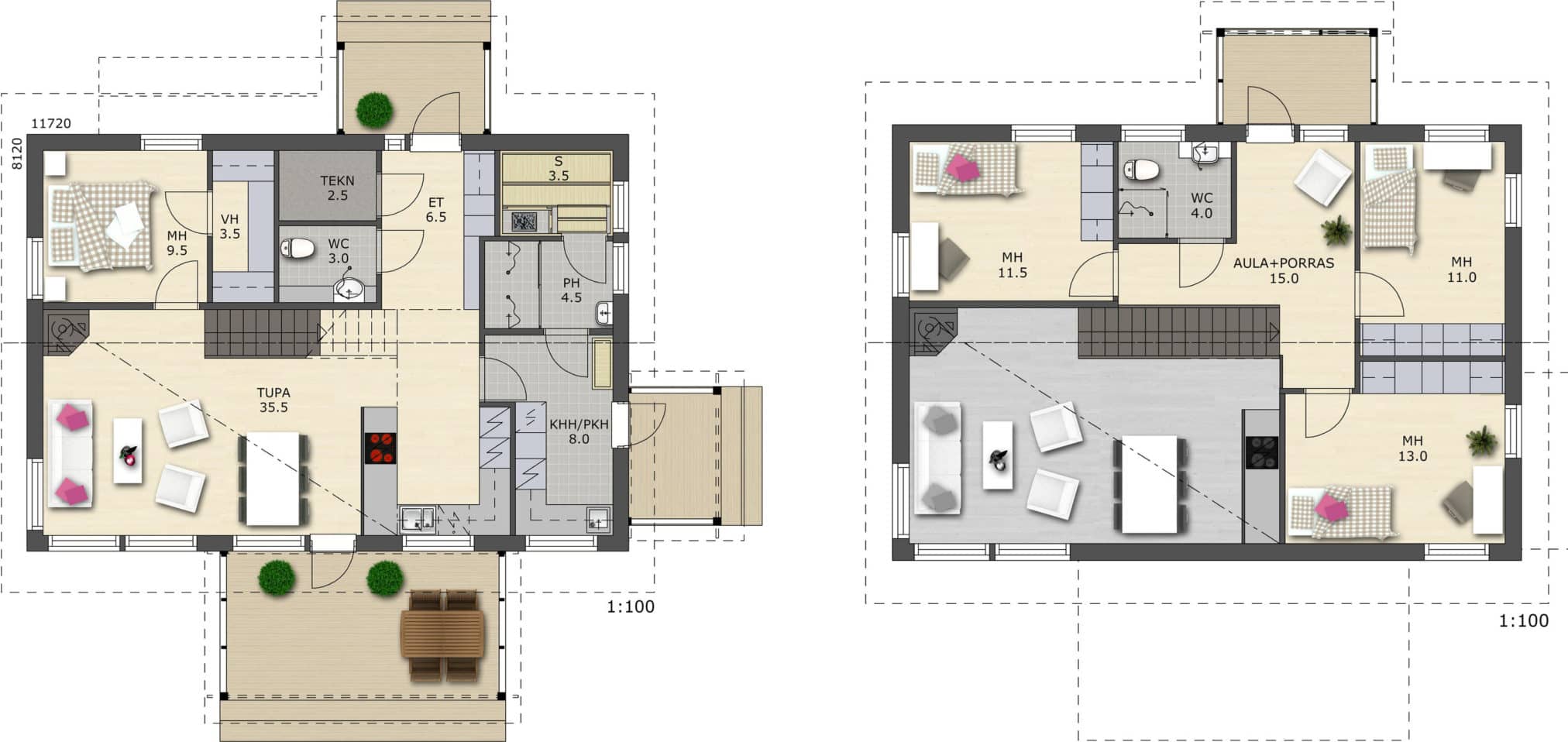
П-155 (170м2)

СтоимостьКомплектация
Клееный брус
200*185 мм
Клееный брус
160*185 мм
Профилированный брус
190*165 мм
Каркасная технология
250 мм
Базовая
2431000 руб.
2244000 руб.
2057000 руб.
1870000 руб.
Стандарт
4301000 руб.
3987000 руб.
3536000 руб.
3145000 руб.
Полная
4896000 руб.
4573000 руб.
4131000 руб.
3740000 руб.
* Все расчеты на дома на сайте являются предварительными и не являются публичной офертой