Видео
отзывы
Кредит, ипотека Подбор зем. участка Обмен на квартиру Экскурсия на объект
8(843) 225-88-22
+7 927 248 80 60
Оставить заявку
г. Казань
ул. Журналистов, д. 2, офис 4
Строим Ваши Мечты
Экологически чистые дома
для самого ценного времени

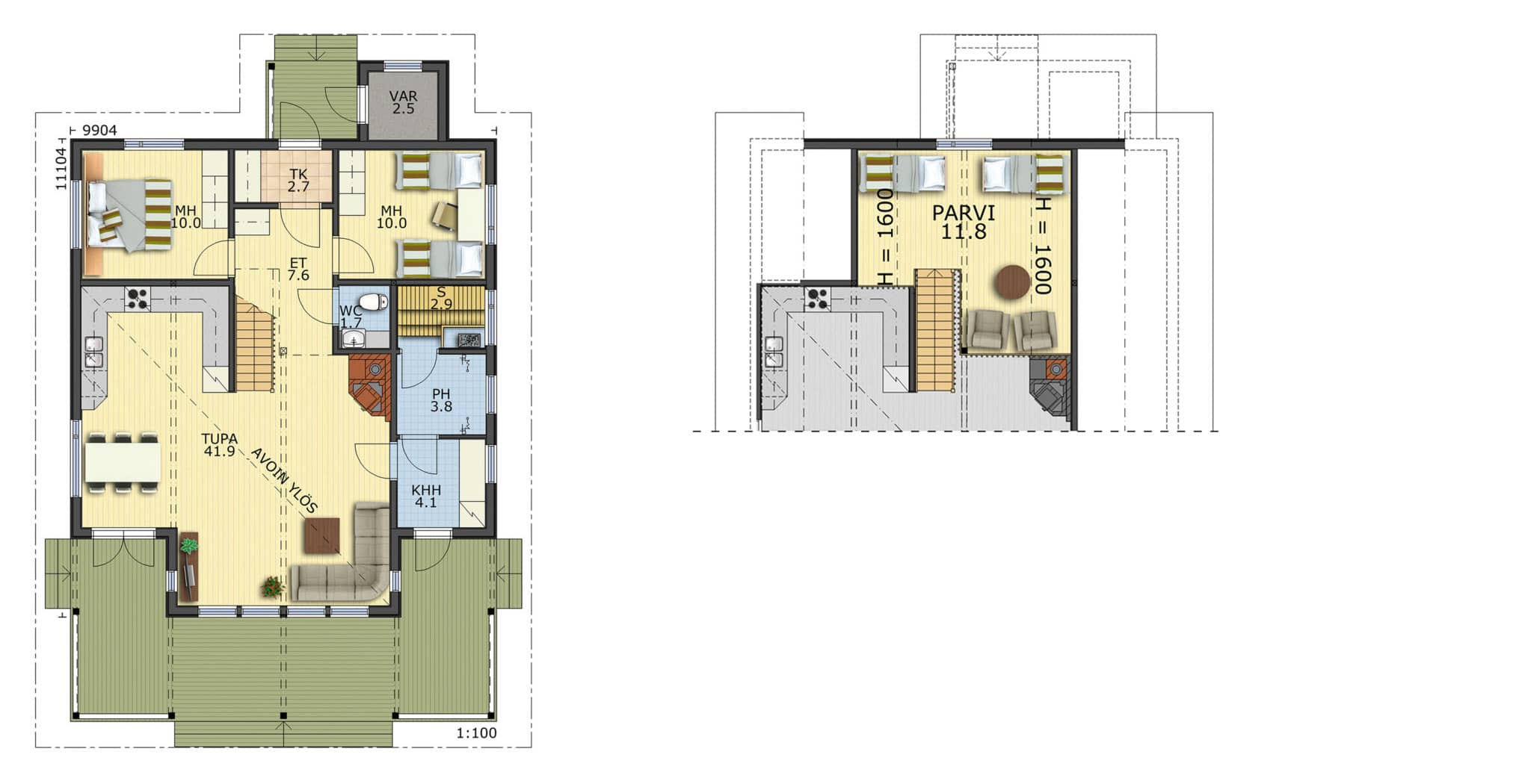
Н-106 (104м2)

СтоимостьКомплектация
Клееный брус
200*185 мм
Клееный брус
160*185 мм
Профилированный брус
190*165 мм
Каркасная технология
250 мм
Базовая
1487200 руб.
1372800 руб.
1258400 руб.
1144000 руб.
Стандарт
2631200 руб.
2433600 руб.
2163200 руб.
1924000 руб.
Полная
2995200 руб.
2797600 руб.
2527200 руб.
2288000 руб.
* Все расчеты на дома на сайте являются предварительными и не являются публичной офертой