Видео
отзывы
Кредит, ипотека Подбор зем. участка Обмен на квартиру Экскурсия на объект
8(843) 225-88-22
+7 927 248 80 60
Оставить заявку
г. Казань
ул. Журналистов, д. 2, офис 4
Строим Ваши Мечты
Экологически чистые дома
для самого ценного времени

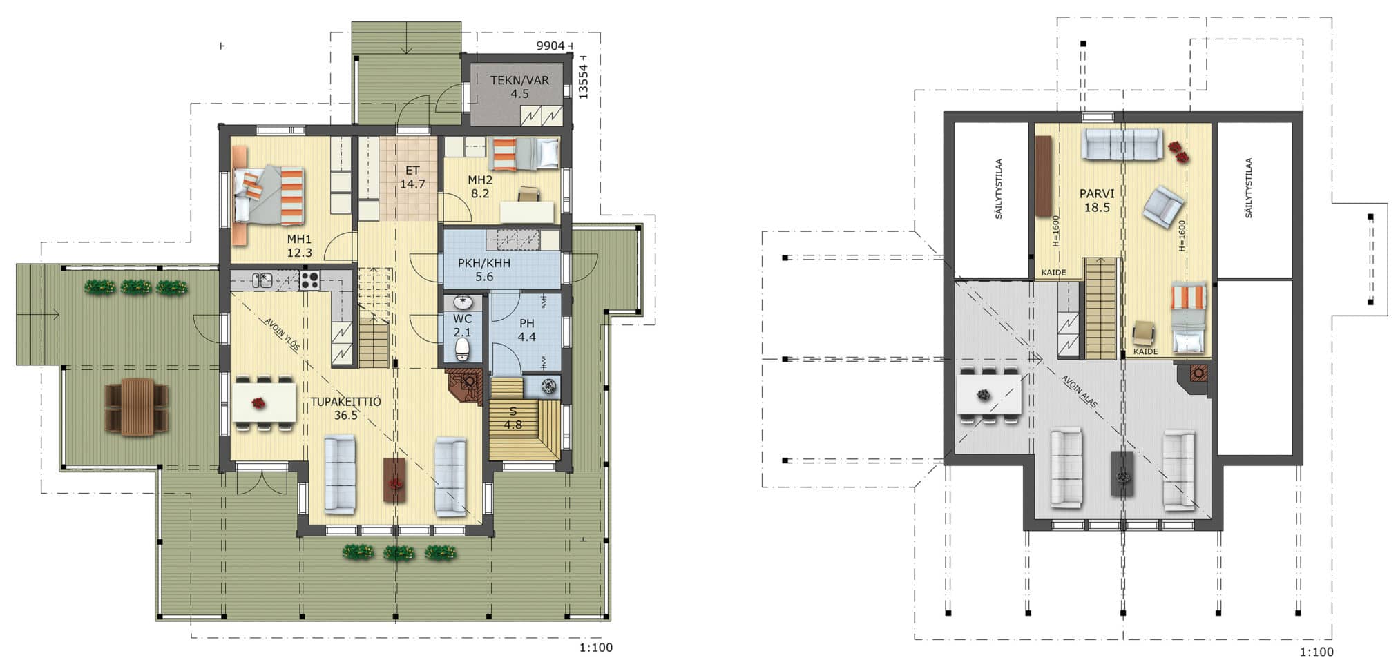
Н-112 (147м2)

СтоимостьКомплектация
Клееный брус
200*185 мм
Клееный брус
160*185 мм
Профилированный брус
190*165 мм
Каркасная технология
250 мм
Базовая
2102100 руб.
1940400 руб.
1778700 руб.
1617000 руб.
Стандарт
3719100 руб.
3439800 руб.
3057600 руб.
2719500 руб.
Полная
4233600 руб.
3954300 руб.
3572100 руб.
3234000 руб.
* Все расчеты на дома на сайте являются предварительными и не являются публичной офертой