Видео
отзывы
Кредит, ипотека Подбор зем. участка Обмен на квартиру Экскурсия на объект
8(843) 225-88-22
+7 927 248 80 60
Оставить заявку
г. Казань
ул. Журналистов, д. 2, офис 4
Строим Ваши Мечты
Экологически чистые дома
для самого ценного времени

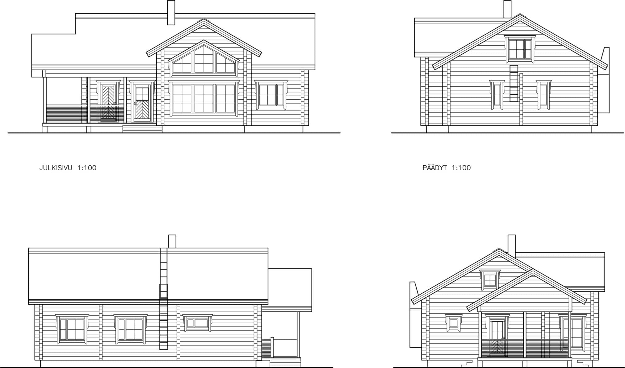
Т-120/1 (171м2)

СтоимостьКомплектация
Клееный брус
200*185 мм
Клееный брус
160*185 мм
Профилированный брус
190*165 мм
Каркасная технология
250 мм
Базовая
2445300 руб.
2257200 руб.
2069100 руб.
1881000 руб.
Стандарт
4326300 руб.
4001400 руб.
3556800 руб.
3163500 руб.
Полная
4924800 руб.
4599900 руб.
4155300 руб.
3762000 руб.
* Все расчеты на дома на сайте являются предварительными и не являются публичной офертой