Видео
отзывы
Кредит, ипотека Подбор зем. участка Обмен на квартиру Экскурсия на объект
8(843) 225-88-22
+7 927 248 80 60
Оставить заявку
г. Казань
ул. Журналистов, д. 2, офис 4
Строим Ваши Мечты
Экологически чистые дома
для самого ценного времени

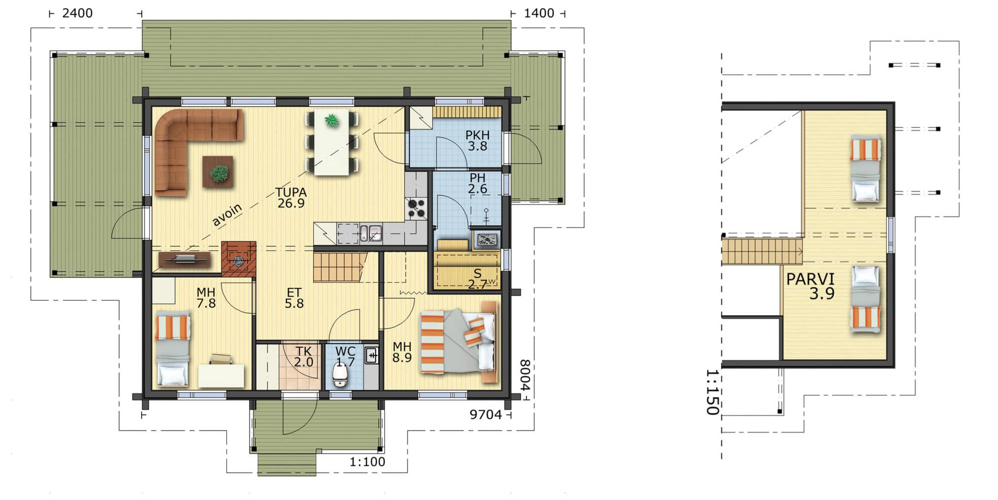
Д-78/2 (108м2)

СтоимостьКомплектация
Клееный брус
200*185 мм
Клееный брус
160*185 мм
Профилированный брус
190*165 мм
Каркасная технология
250 мм
Базовая
1544400 руб.
1425600 руб.
1306800 руб.
1188000 руб.
Стандарт
2732400 руб.
2527200 руб.
2246400 руб.
1998000 руб.
Полная
3110400 руб.
2905200 руб.
2624400 руб.
2376000 руб.
* Все расчеты на дома на сайте являются предварительными и не являются публичной офертой