Видео
отзывы
Кредит, ипотека Подбор зем. участка Обмен на квартиру Экскурсия на объект
8(843) 225-88-22
+7 927 248 80 60
Оставить заявку
г. Казань
ул. Журналистов, д. 2, офис 4
Строим Ваши Мечты
Экологически чистые дома
для самого ценного времени

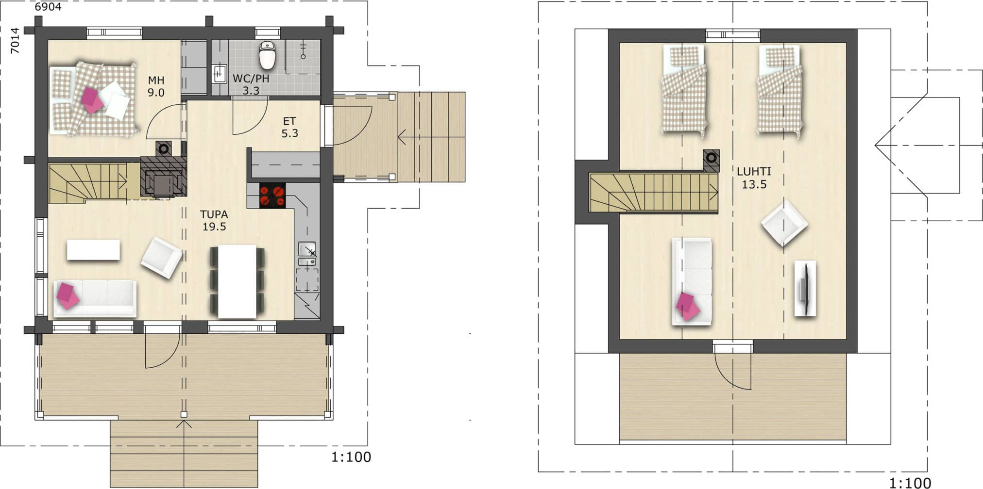
С-64 (92м2)

СтоимостьКомплектация
Клееный брус
200*185 мм
Клееный брус
160*185 мм
Профилированный брус
190*165 мм
Каркасная технология
250 мм
Базовая
1315600 руб.
1214400 руб.
1113200 руб.
1012000 руб.
Стандарт
2327600 руб.
2152800 руб.
1913600 руб.
1702000 руб.
Полная
2649600 руб.
2474800 руб.
2235600 руб.
2024000 руб.
* Все расчеты на дома на сайте являются предварительными и не являются публичной офертой