Видео
отзывы
Кредит, ипотека Подбор зем. участка Обмен на квартиру Экскурсия на объект
8(843) 225-88-22
+7 927 248 80 60
Оставить заявку
г. Казань
ул. Журналистов, д. 2, офис 4
Строим Ваши Мечты
Экологически чистые дома
для самого ценного времени

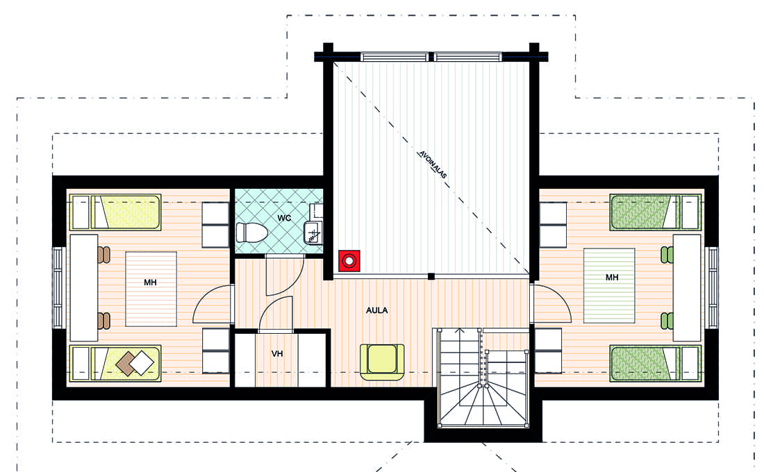
К-141 (218м2)

СтоимостьКомплектация
Клееный брус
200*185 мм
Клееный брус
160*185 мм
Профилированный брус
190*165 мм
Каркасная технология
250 мм
Базовая
3117400 руб.
2877600 руб.
2637800 руб.
2398000 руб.
Стандарт
5515400 руб.
5101200 руб.
4534400 руб.
4033000 руб.
Полная
6278400 руб.
5864200 руб.
5297400 руб.
4796000 руб.
* Все расчеты на дома на сайте являются предварительными и не являются публичной офертой