Видео
отзывы
Кредит, ипотека Подбор зем. участка Обмен на квартиру Экскурсия на объект
8(843) 225-88-22
+7 927 248 80 60
Оставить заявку
г. Казань
ул. Журналистов, д. 2, офис 4
Строим Ваши Мечты
Экологически чистые дома
для самого ценного времени

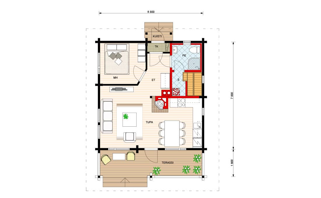
К-61 (52м2)

СтоимостьКомплектация
Клееный брус
200*185 мм
Клееный брус
160*185 мм
Профилированный брус
190*165 мм
Каркасная технология
250 мм
Базовая
743600 руб.
686400 руб.
629200 руб.
572000 руб.
Стандарт
1315600 руб.
1216800 руб.
1081600 руб.
962000 руб.
Полная
1497600 руб.
1398800 руб.
1263600 руб.
11444000 руб.
* Все расчеты на дома на сайте являются предварительными и не являются публичной офертой