Видео
отзывы
Кредит, ипотека Подбор зем. участка Обмен на квартиру Экскурсия на объект
8(843) 225-88-22
+7 927 248 80 60
Оставить заявку
г. Казань
ул. Журналистов, д. 2, офис 4
Строим Ваши Мечты
Экологически чистые дома
для самого ценного времени

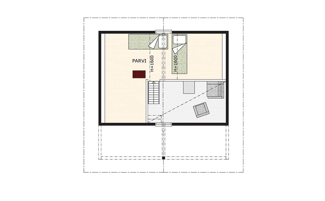
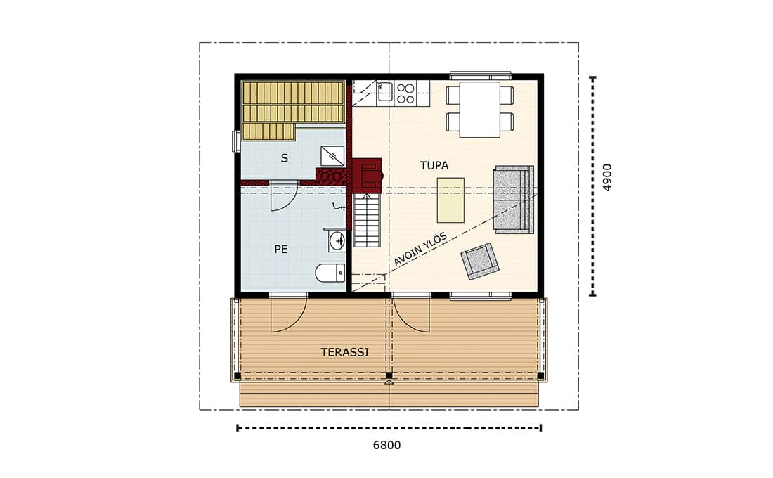
К-68 (67м2)

СтоимостьКомплектация
Клееный брус
200*185 мм
Клееный брус
160*185 мм
Профилированный брус
190*165 мм
Каркасная технология
250 мм
Базовая
958100 руб.
884400 руб.
810700 руб.
737000 руб.
Стандарт
1695100 руб.
1567800 руб.
1393600 руб.
12395000 руб.
Полная
1929600 руб.
1802300 руб.
1628100 руб.
14744000 руб.
* Все расчеты на дома на сайте являются предварительными и не являются публичной офертой