Видео
отзывы
Кредит, ипотека Подбор зем. участка Обмен на квартиру Экскурсия на объект
8(843) 225-88-22
+7 927 248 80 60
Оставить заявку
г. Казань
ул. Журналистов, д. 2, офис 4
Строим Ваши Мечты
Экологически чистые дома
для самого ценного времени

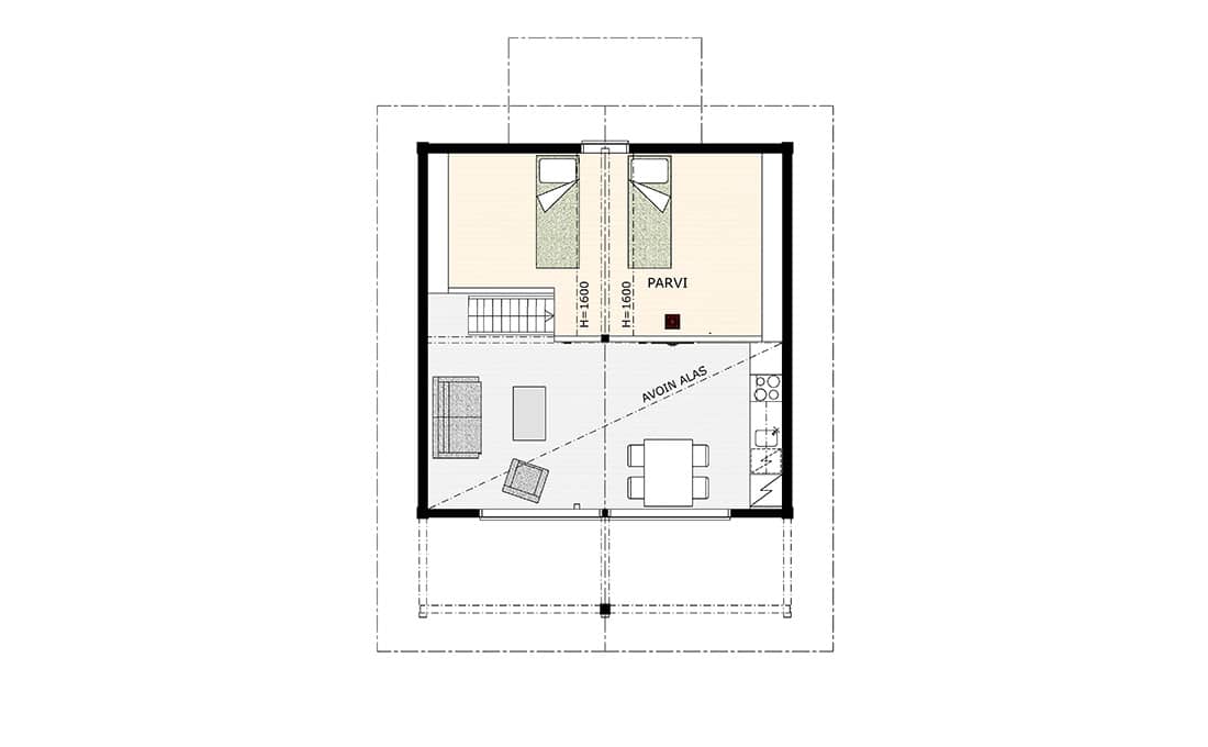
К-83 (80м2)

СтоимостьКомплектация
Клееный брус
200*185 мм
Клееный брус
160*185 мм
Профилированный брус
190*165 мм
Каркасная технология
250 мм
Базовая
1144000 руб.
1056000 руб.
968000 руб.
880000 руб.
Стандарт
2024000 руб.
1872000 руб.
1664000 руб.
1480000 руб.
Полная
2304000 руб.
2152000 руб.
1944000 руб.
1760000 руб.
* Все расчеты на дома на сайте являются предварительными и не являются публичной офертой